Private House, Henley-on-Thames
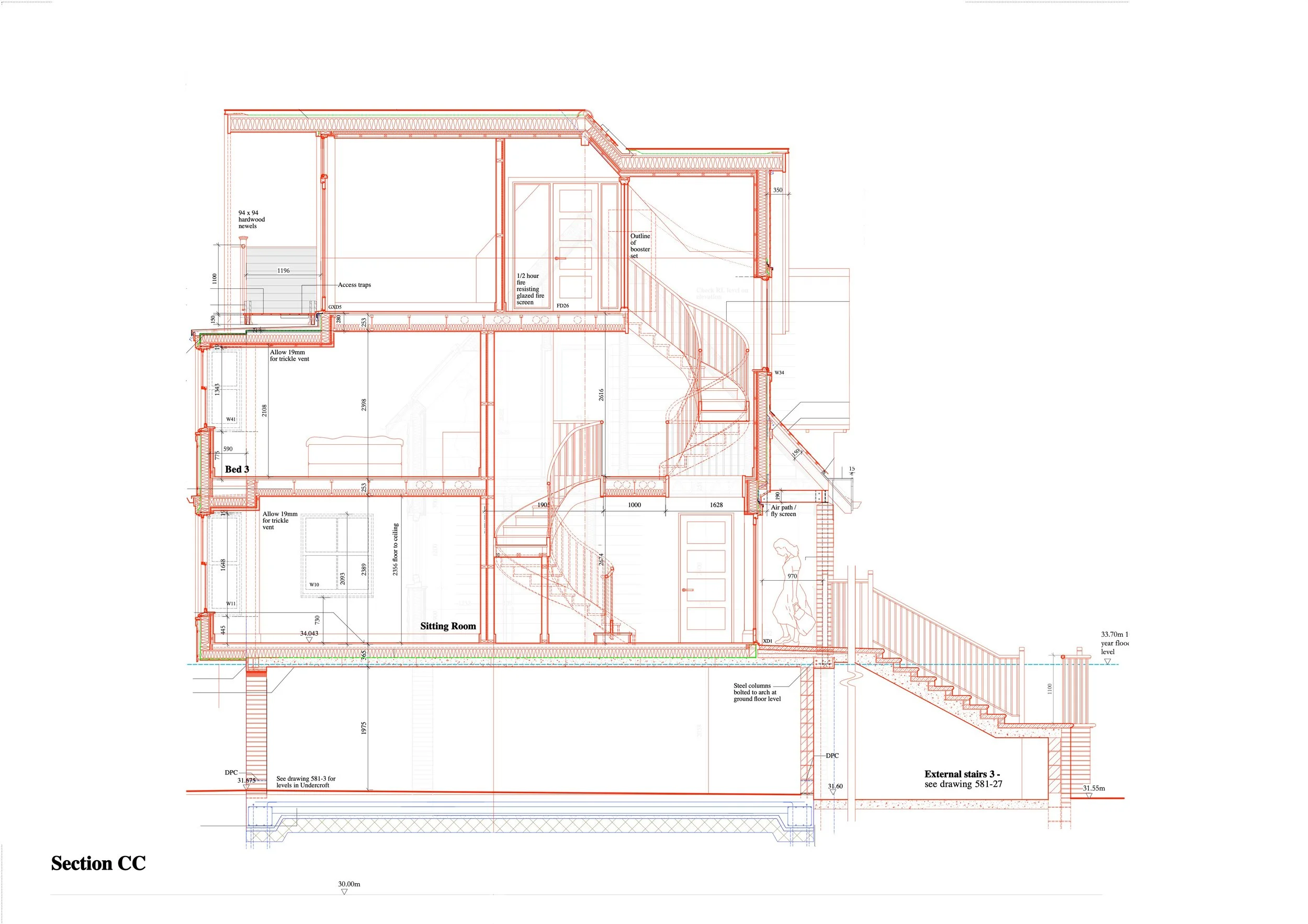
At Nichols Brown Webber, I worked with the team on the design for a private house in the flood plains of the Thames in Henley-on-Thames. The ground floor of the house had to be set 2.5m above ground level and it was constructed with SIPs, which have a much lower level of embodied energy compared to traditional construction methods.



